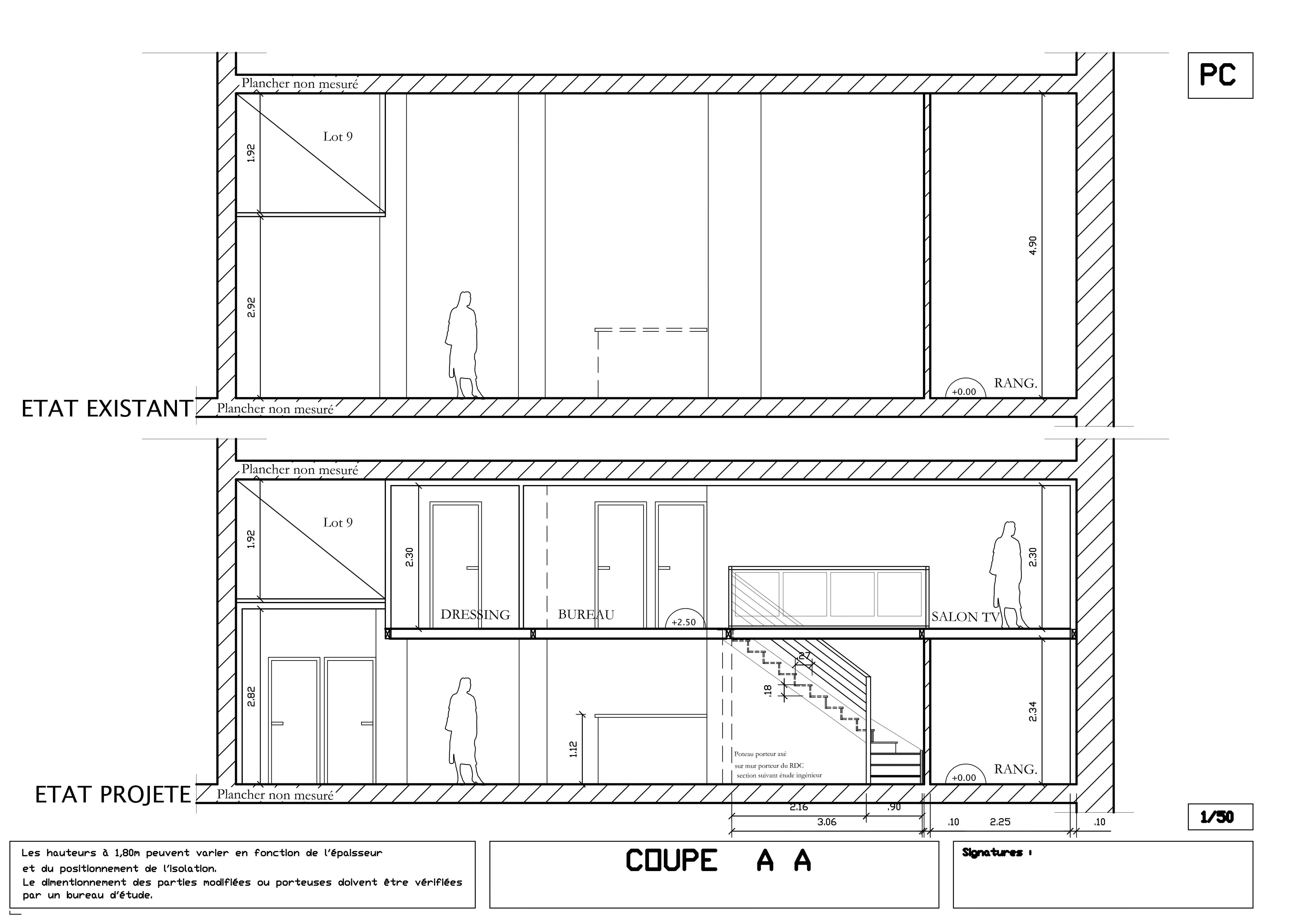
Suite à la vente de l'ancien bâtiment du MEDEF au Havre, changement d'affectation de bureaux en plateaux libres d'habitations et création par l'architecte d'un loft.
Année : 2012
Maître d'ouvrage : Privé
Surface : m²
Lieu : Le Havre, Seine-Maritime (76)